Mányi
.
István
Mányi István
Mányi
.
István
Riguardo a noi
I lavori piů importanti
Concorsi per progetto
Riconoscimenti professionali
Pubblicazioni
Casa
Cultura, eredità
Educazione
Sport
Commercio, amministrazione
Ospitalità, turismo
Ulteriori progetti
HU EN DE IT RU
Magyar
English
Deutsch
Italiano
Pусский
Mányi
.
István
- I lavori piů importanti
- Concorsi per progetto
- Riconoscimenti professionali
- Pubblicazioni
Casa
Cultura, eredità
Educazione
Sport
Commercio, amministrazione
Ospitalità, turismo
Ulteriori progetti
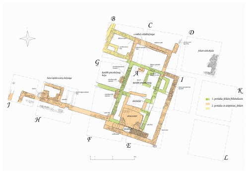
Cultura, eredità
Sárospatak, Fonderia di cannoni di "György Rákóczi I."